Gantry Eight-axis Intelligent Workstation

Shaanxi Jingtai Cooperation Laser Technology Co. Eight Axis Gantry Intelligent Workstation is mainly used for the welding production of plate unit structure type workpieces in ships, bridges, and environmental protection equipment. The eight axis gantry workstation is compatible with the adaptability of ground rails, seven axis cantilevers, eight axis cantilevers, and seven axis gantry workstations. The system deeply integrates welding processes, accurately locates component welds through a visual system, and automatically generates welding programs and executes welding based on the obtained weld coordinate information through the integrated fabric welding expert library. For flat angle welds, vertical angle welds, and multi-layer and multi pass welds with arbitrary placement of workpieces, precise and fast welding can be achieved without programming, teaching, and graphic import. The workstation has auxiliary functions such as arc tracking, automatic gun cleaning, and long-term continuous welding.

Product Images

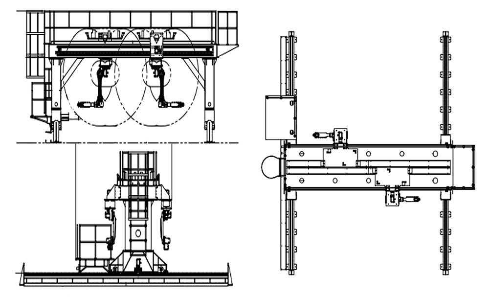
Assembly diagram of the Gantry Eight-Axis Workstation

Parameters of the Gantry Eight-Axis Workstation

subitemunitcontent
applicable scenarios/Welding of structural components such as H-shaped steel beams, columns, bridge slabs, and large diaphragms (with a width less than 5/7 meters)
equipment specificationsm24*7.5*3.8、24*9.5*3.8
total powerKW34
Maximum working rangem22*5*0.45、22*7*0.45
average welding efficiencym/day180~240(The structural types are different)

 

Performance of the Gantry Dual-Machine Eight-Axis Workstation

Application processesCutting, marking, welding
Environmental protection equipmentoptional equipment
Work Coordinate SystemPCS1、PCS2、PCS3
Working range22000*5000*450
Working hours7*20H
Welding Process PackageCO2/80% CO2+20%AR solid core carbon steel, CO2 flux-cored carbon steel DC and pulse welding
Welding Material Typespool packaging、drum packaging
Applicable scenariosWelding of longer structural components such as H-shaped steel beams, columns, and bridge slabs
Motion modeEight-axis linkage
Auxiliary AxisX and Y axis compensation additional axes, allowing both robots to cover the entire gantry workspace

 

Workflow of the Gantry Dual-Machine Eight-Axis Workstation

1)Manually or via conveyor chain, transport the components to be welded to the workstation frame, positioning them near point P;

2)(Simultaneously or in advance) Operators rotate the model consistently and create nodes based on the component number and placement;

3)If the placement deviation is too large, use a camera to identify the component’s positioning point P. If the placement is close enough, operators directly load the model and initiate scanning;

4)After scanning is complete, the system initiates welding;

5)Once the welding of the entire component is completed, transport the component to the subsequent workstation. If there is no component model, the equipment can be operated for welding using visual interaction. After placing the component on the workstation, operators take photos of the welding areas using a camera, match the process, and initiate scanning for welding. Compared to model-driven operations, this method increases the relative workload for ope

Applicable Component Display (Partial)

Submit Your Sourcing Request

Please complete the form with your detailed requirements, and our support team will get back to you promptly. A dedicated specialist will be assigned to your project to provide professional guidance and personalized solutions.

For the fastest response, we recommend submitting your request through the form. If you experience any issues with submission, you may also contact us directly at [email protected].

Inquire Now

Feel free to inquire now. We are always here to help you.

¡Consulta ahora!

Siéntase libre de hacer su consulta ahora. Siempre estamos aquí para ayudarlo.

استفسر الآن

لا تتردد في الاستفسار الآن. نحن دائمًا هنا لمساعدتك.

Связаться сейчас

Не стесняйтесь задавать вопросы. Мы всегда готовы помочь вам.