Gantry Nine-axis Intelligent Workstation

The gantry type multi additional axis dual machine intelligent welding workstation is mainly used for robot automated welding of various steel structure buildings, bridges, ships and other structures. The workstation meets the welding requirements of various corner welds such as H-shaped steel structures, bridge slab units, and horizontal plates, and has continuous upgrading conditions. It will also adapt to welding in other scenarios in the future. Each gantry welding workstation includes a control system, gantry walking mechanism, 2 sets of arc welding robots, 2 sets of robot welding power supplies and cooling water tanks, 2 sets of intelligent welding vision systems, and 2 sets of water cooling gun systems.

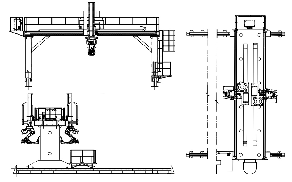
Product Images

Assembly diagram of the Gantry Nine-Axis Workstation

Parameters of the Gantry Nine-Axis Workstation

subitemunitcontent
applicable scenarios/Mainly used for bridge structure plate units, H-beams, and other assembly components such as transportation rails
equipment specificationsm24*7.5*4.8
total powerKW37
Maximum working rangem24*5*1.5
average welding efficiencym/day160~220(The structural types are different)

 

Performance of the Gantry Dual-Machine Nine-Axis Workstation

Application processesCutting, marking, welding
Environmental protection equipmentoptional equipment
Work Coordinate SystemPCS1、PCS2、PCS3
Working range24000*5000*1500
Working hours7*20H
Welding Process PackageCO2/80% CO2+20%AR solid core carbon steel, CO2flux-cored carbon steel DC and pulse welding
Welding Material Typespool packaging、drum packaging
applicable scenariosWelding of large enclosures, H-beams, columns, bridge plates, large bulkheads, and other structural components
Motion modeNine-axis linkage
Auxiliary AxisOptional Ground Track and Gantry

 

Workflow of the Gantry Dual-Machine Nine-Axis Workstation

1)Manually or via conveyor chain, transport the components to be welded to the workstation frame, positioning them near point P;

2)(Simultaneously or in advance) Operators rotate the model consistently and create nodes based on the component number and placement;

3)If the placement deviation is too large, use a camera to identify the component’s positioning point P. If the placement is close enough, operators directly load the model and initiate scanning;

4)After scanning is complete, the system initiates welding;

5)Once the welding of the entire component is completed, transport the component to the subsequent workstation. If there is no component model, the equipment can be operated for welding using visual interaction. After placing the component on the workstation, operators take photos of the welding areas using a camera, match the process, and initiate scanning for welding. Compared to model-driven operations, this method increases the relative workload for operators

Applicable Component Display (Partial)

Submit Your Sourcing Request

Please complete the form with your detailed requirements, and our support team will get back to you promptly. A dedicated specialist will be assigned to your project to provide professional guidance and personalized solutions.

For the fastest response, we recommend submitting your request through the form. If you experience any issues with submission, you may also contact us directly at [email protected].

Inquire Now

Feel free to inquire now. We are always here to help you.

¡Consulta ahora!

Siéntase libre de hacer su consulta ahora. Siempre estamos aquí para ayudarlo.

استفسر الآن

لا تتردد في الاستفسار الآن. نحن دائمًا هنا لمساعدتك.

Связаться сейчас

Не стесняйтесь задавать вопросы. Мы всегда готовы помочь вам.